House 10mx20m

$19
0 ratings

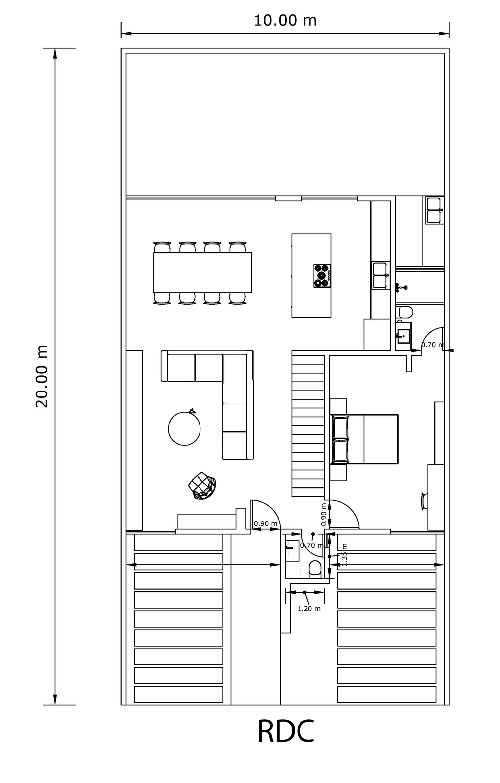
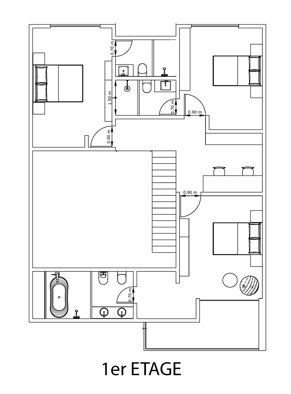
The measurements of the land are 10 meters wide by 20 meters deep

Built Area: 200m² | Built Area: 2152ft²

The distribution is as follows:

GROUND:Bedroom 1 and bathroom-Living room-Dining room-Kitchen-Bathroom-Laundry room.

1st FLOOR:Office-Bedroom 2 and bathroom-Bedroom 3 and bathroom-Master room and bathroom.

Package Includes:

🏡 House Plans in PDF and DWG formats, in metric measurements.

If you want to deposit in cash or by transfer, and make your deposit, send the receipt to the email bet.archinext@gmail.com and you will receive the contents to your email.

EXTERIOR BANK OF ALGERIA (BEA):

account name : SAADI KHIREDDINE

Interbank Code (CCI): 002-00046-046310136176

account number : 046310136176

SWIFT Code : BEXADZAL046

Buy this

Files:

PDF
2
DWG
2
$19

House 10mx20m

0 ratings
Buy this